Family Pied-à-terre

 

Family Pied-à-terre

Etobicoke, Toronto


Located in the west end of Toronto the project is renovation of a 1990’s penthouse condo that serves as a ‘pied-à-terre’ for a close-knit family. 

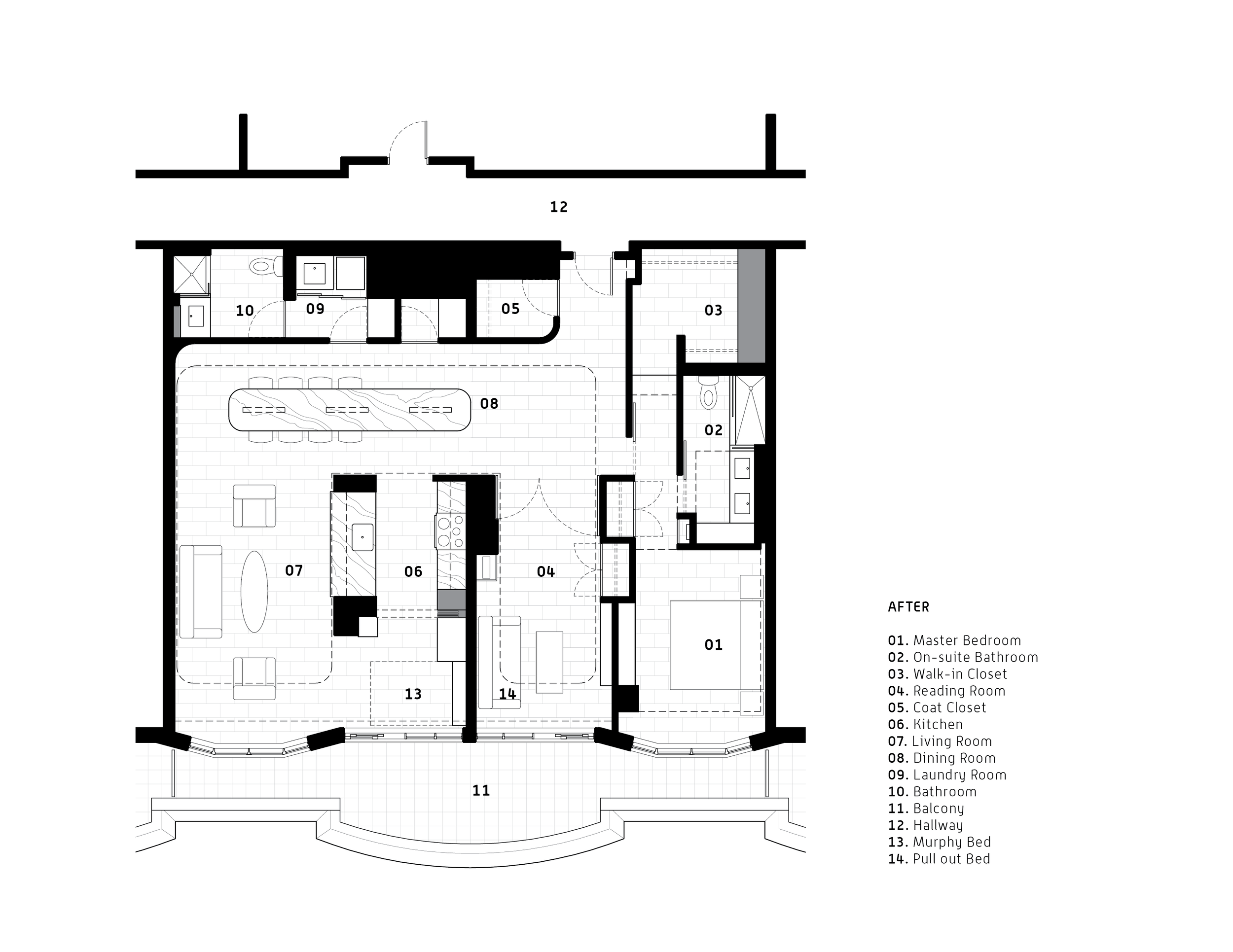
The renovation removed the existing walls that limited daylight into the depth of the unit. New walls, perpendicular to the broad width of glazing and a balcony overlooking Mimico Creek, allow daylight to enter the whole space. Further, the use of flowing curved bulkheads and rounded corners draw the space towards the sunbathed southern exposure. On the other hand, the design also creates intimate corners ideal for reading a book, or watching a game on the television.

Programmatically, as the condo is sometimes occupied by only one family member, and at other times, by all four, the flexibility of spaces was achieved through the design of temporary partitioning by large sliding and pivoting doors as well as murphy beds and pull-out couches. Moreover, the design also aimed to become a highly social space at time as the unit revolves around a narrow five and half metre-long marble and white oak table giving dinners, discussions, and card games. 


Credits

Kevin Weiss – Principal, Weiss Architecture & Urbanism Limited, Sophie Tremblay – Project Architect
HVAC: GPY and Associates
Contractor: Andes Construction
Photos: Arnaud Marthouret - Revelateur Studio


 
Family pied-à-terre - 01.jpg
Family pied-à-terre - 02.jpg
Family pied-à-terre - 05.jpg
Family pied-à-terre - 07.jpg
Family pied-à-terre - 06.jpg
Family pied-à-terre - 04.jpg
Family pied-à-terre - Diagrams-01.png